8월9일 계약이후..
다가구 주택으로 기본설계진행중이다.
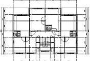
지상2층 평면도- 건폐율 40%에 용적률이 100%, 원룸형으로 확장발코니 포함 대략 6.5~7평 정도로 6호까지 계획이 가능하다
수요분석 및 주차장을 고려하여 투룸을 3,4호 정도 계획이 필요하다.
'건축시공과정 구경하기 > 집 만들기01-태전동 다가구주택' 카테고리의 다른 글
| 준공모습 (0) | 2012.07.09 |
|---|---|
| 태전동 입면계획 (0) | 2011.11.26 |
| 경기도 광주 인허가 진행-태전동다가구원룸진행사항1 (0) | 2011.11.26 |
| 태전동 투룸 평면. (0) | 2011.09.10 |